GOVERNMENT

PROJECTS

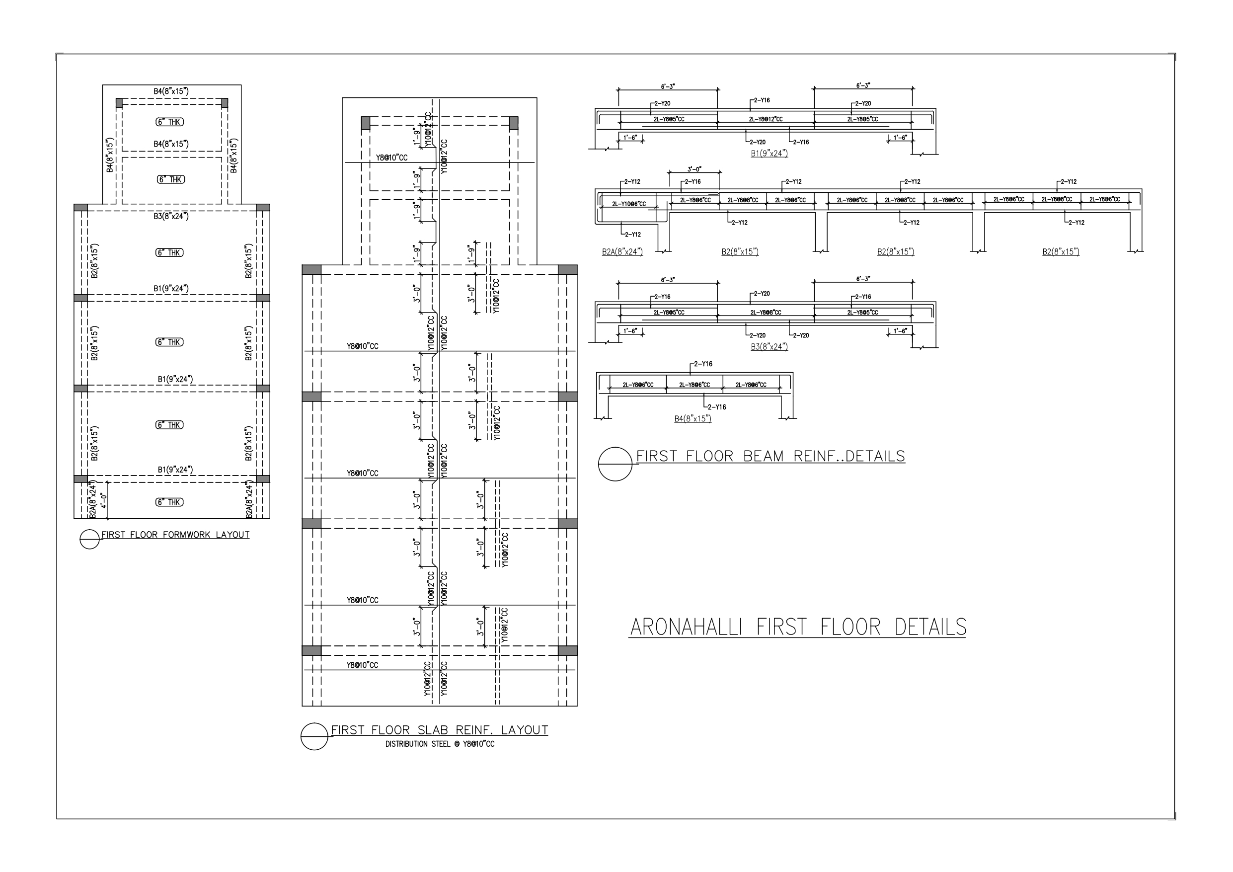
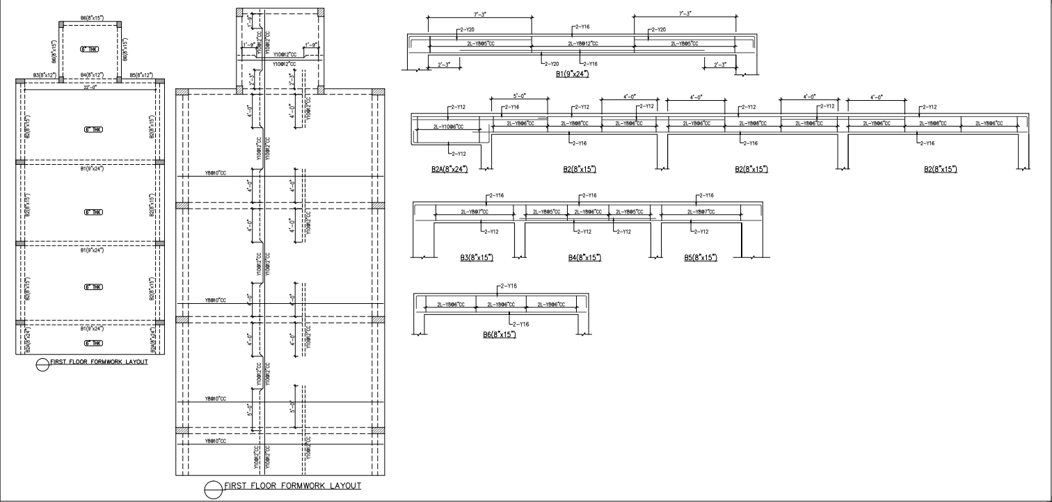
ARONAHALLI SAMUDAYA BHAVANA

ARONAHALLI SAMUDAYA BHAVANA

PLACE OF WORK
BUILD AREA
PERIOD OF COMPLETION
NATURE OF WORK
PROJECT COST
STATUS

HOSAHALLI SAMUDAYA BHAVANA

HOSAHALLI SAMUDAYA BHAVANA

PLACE OF WORK
BUILD AREA
PERIOD OF COMPLETION
NATURE OF WORK
PROJECT COST
STATUS

CHENNESHAPURA SCHOOL BUILIDING

CHENNESHAPURA SCHOOL BUILDING

PLACE OF WORK
BUILD AREA
PERIOD OF COMPLETION
NATURE OF WORK
PROJECT COST
STATUS

PLD BANK CHENNAGIRI

PLACE OF WORK
BUILD AREA
PERIOD OF COMPLETION
NATURE OF WORK
PROJECT COST
STATUS